Hmlet Nakano【Spring Special Offer】(ハムレット中野【春の特別キャンペーン実施中】)
Just 4 minutes direct to Shinjuku—urban living where subculture meets modern city life.
Hmlet Nakano offers outstanding access to central Tokyo, just 4 minutes to Shinjuku and 20 minutes to Tokyo Station. With direct connections via the JR Chuo Line Rapid and Tokyo Metro Tozai Line, you can reach major business hubs like Otemachi and Nihonbashi without transfers.
- Campaign Information
-
【Spring Special Offer】
【Fresh Start Special Discount】 Get ¥20,000 OFF your move-in costs!
※Please refer to the "Other"(See more detail of this property) section for details.
Property Location住所
1-2-15 Arai, Nakano-ku, Tokyo
東京都中野区新井1-2-15
| Period 契約対象期間 | 1mo. 1カ月 |
|---|---|
| Type of Property 物件種類 | Apartment Type |
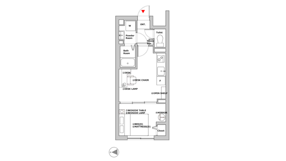
| Room Arrangement 間取り | 1LDK、1DK、1K |
| Room Area 部屋面積 | 25.63~40.42m2 |
| Capacity for how many people 人数 | 0(0人) |
| Rent 賃料 | JPY 179,400~JPY 261,300 / month |
|---|---|
| Common service fee 共益費 | - |
| Security Deposit (Insurance fee) 敷金 | - |
| Key money (contract money/administrative fee) 礼金 | JPY 17,940~JPY 26,130 |
| Water, heat, and light expenses 水道光熱費 | - |
360° お部屋をご覧いただけます。
Map
Access
Please notice that the time displayed is for reference purposes. Does not include transfer time.
ここに表示された所要時間は、あくまでも目安と考えてください。合計時間には乗り換え時間は含まれておりません。
- Nearest station
最寄駅 -
Chuo / Sobu Line Nakano St 中央・総武線中野駅9 minute(分)
Tozai Line Nakano St 東西線中野駅9 minute(分)
Access to Waseda campus
早稲田キャンパスまでのアクセス
最寄駅 Tozai Line Nakano St.
東京メトロ東西線早稲田駅
乗り換え 0回計 24分
- 業者CD(6桁)000260
- 物件CD(6桁)001333
Facility 設備
| Personal 専用部分 |
![]() ![]() ![]() ![]() ![]() ![]() ![]() ![]() ![]() ![]() ![]() ![]() ![]() ![]() |
|---|
| Other その他 | ※No elevator |
|---|
See more detail of this property
この物件の詳細をもっと見る
物件詳細
| 業者CD(6桁) | 000260 | 物件CD(6桁) | 001333 |
|---|---|---|---|
| Property Name 物件名称 | Hmlet Nakano【Spring Special Offer】(ハムレット中野【春の特別キャンペーン実施中】) | ||
| Property Location 物件所在地 | 1-2-15 Arai, Nakano-ku, Tokyo東京都中野区新井1-2-15 | ||
| Rent賃料 | JPY 179,400~JPY 261,300 / month | Types of contract契約種類 | Fixed lease contract定期借家契約 |
| extended延長 | Able to re-contract再契約可 | Structure 構造 | Reinforced concreteRC |
| Period 契約期間 | 1mo. 1カ月 |
Type of Property 物件種類 | Apartment Type |
| Construction Date 建築年月 | February 2025 2025年2月 |
Reparation Date 改修工事年月 | |
| Story 階数 | 5rd Floor 地上5階 | Room Arrangement 間取り | 1LDK、1DK、1K |
| Parking Space 駐輪場 | Available あり |
Rooms in the building 1棟の総戸数 | 16 room(s)16 室 |
| Rooms for rental 賃貸戸数 | 16 room(s)16 室 | Capacity for how many people 収容人数 | |
| Room Area 部屋面積(m2) | Minimum Area 25.63 / Maximum Area 40.42最小面積 25.63 / 最大面積 40.42 | ||
| Contract requirement 契約条件 |
Allows friend/family visit(友人・家族訪問可) Allows friend/family to sleepover(友人・家族宿泊可) |
||
賃料など
| Payment 支払方法 |
One-time payment 一括前払い、Monthly payment 月払い Credit card クレジットカード払い / Bank transfer 銀行振込 |
|---|---|
| Rental fee賃料 |
|
| Common service fee共益費 |
|
| Water, heat, and light expenses水道光熱費 |
|
| Internet feeインターネット料 |
|
| Rental guarantee fee賃貸保証料 |
|
| Property insurance fee家財保険料 |
|
| Key money (contract money/administrative fee)礼金(契約金・事務手数料) |
|
| Security Deposit (Insurance fee)敷金(保証金) |
|
| Key exchange fee (key deposit)鍵交換費(鍵デポジット) |
|
| Cleaning feeクリーニング費用 |
|
| Cancellation penalty fee中途解約違約金 |
|
| Re-contract fee (update fee)再契約料(更新料) |
|
| Bedding fee寝具代 |
|
| Membership fee会員費 |
|
| Ohter その他 | 【Fresh Startキャンペーン実施中】初回費用から¥20,000 OFF 新生活をスタートされる方を対象に、初期費用が20,000円OFFとなるFresh Start Special Discountを実施いたします! この機会に、ハムレットでの暮らしを楽しんでみませんか?スタイリッシュな空間と、便利で快適なライフスタイルが待っています。 <キャンペーン概要> 特典: 初期費用から20,000円割引 <適用条件> 入居開始期間: 2026年5月1日 〜 6月30日に入居を開始される方 対象物件:Hmlet全物件 対象者:Hmletを初めてご利用いただく方で、上記期間中に新規契約を締結されるお客様 ※過去にHmletへの入居歴がある方(再契約・部屋移動・物件移動)は対象外となります。 <キャンペーンの適用方法> お申し込み時に、「キャンペーンを見た」とお知らせください。 ============================= 【Spring Special Offer】 【Fresh Start Special Discount】 Get ¥20,000 OFF your move-in costs! Kickstart your new life with Hmlet! We are excited to offer a special discount to help you settle in. Why not take this opportunity to experience the Hmlet lifestyle? A stylish living space and a convenient, comfortable lifestyle are waiting for you. <Campaign Details> Offer: ¥20,000 OFF your initial move-in costs <Terms & Conditions> Move-in Period: Applicable for residents starting their stay between May 1 and June 30, 2026 Eligible Properties: All Hmlet properties Eligibility: This campaign is available exclusively to first-time residents who sign a new lease. Please note that current residents who are extending their existing contracts, as well as former residents returning through a re-contract or relocating/transferring between Hmlet properties, are not eligible for this discount. <How to Apply> When applying, please mention that you saw the campaign. ~~~~~~~~~~~~~~~~~~~~~~~~~~~~~~~~~~~~ *入居費用(契約時の一回限りの支払い) サービスフィー(返金不可): 総賃料の10% 退去清掃費: 基準家賃の25% *オプション料金(該当する場合のみ) ペット礼金: ¥110,000(返金不可) 駐輪場登録費: ¥3,300/台(契約時にお支払い) レンタル布団セット: ¥22,000/一式(契約時にお支払い) *料金に含まれる内容: - 光熱費・インターネット費用 - カスタマーサポート・緊急コールセンター - 仲介手数料なし - 礼金なし *キッチン備品: - 調理器具・カトラリーが部屋に備え付けられています。 https://drive.google.com/file/d/1sSyG7K30TXeBjV3xSmGH7E2I8Xqu1zRB/view ============================================================= *Move-in Fees (One-time Payment, applicable to all contracts.) Service Fee(Non-refundable): 10% of Rent Subtotal Move Out Cleaning Fee: 25% of List Price *Optional Fees (If Applicable) Pet Fee: ¥110,000 (Non-refundable) Bicycle Parking Registration Fee: ¥3,300 (One-time payment per bicycle) Rental Futon Set: ¥22,000 (One-time payment per set) *Included in Service Fee: - Utilities & Internet Fees - Customer Support & Emergency Call Center - No Brokerage Fee - No Key Money Required *Kitchen Essentials Provided: - Cooking utensils and cutlery are included in the room. https://drive.google.com/file/d/1EE-avQWs-ECVMZpK8NRitGvFLiJ72L8P/view |
| Payment 支払方法 |
One-time payment 一括前払い、Monthly payment 月払い Credit card クレジットカード払い / Bank transfer 銀行振込 |
|---|---|
| Rental fee賃料 |
|
| Common service fee共益費 |
|
| Water, heat, and light expenses水道光熱費 |
|
| Internet feeインターネット料 |
|
| Rental guarantee fee賃貸保証料 |
|
| Property insurance fee家財保険料 |
|
| Key money (contract money/administrative fee)礼金(契約金・事務手数料) |
|
| Security Deposit (Insurance fee)敷金(保証金) |
|
| Key exchange fee (key deposit)鍵交換費(鍵デポジット) |
|
| Cleaning feeクリーニング費用 |
|
| Cancellation penalty fee中途解約違約金 |
|
| Re-contract fee (update fee)再契約料(更新料) |
|
| Bedding fee寝具代 |
|
| Membership fee会員費 |
|
| Ohter その他 | 【Fresh Startキャンペーン実施中】初回費用から¥20,000 OFF 新生活をスタートされる方を対象に、初期費用が20,000円OFFとなるFresh Start Special Discountを実施いたします! この機会に、ハムレットでの暮らしを楽しんでみませんか?スタイリッシュな空間と、便利で快適なライフスタイルが待っています。 <キャンペーン概要> 特典: 初期費用から20,000円割引 <適用条件> 入居開始期間: 2026年5月1日 〜 6月30日に入居を開始される方 対象物件:Hmlet全物件 対象者:Hmletを初めてご利用いただく方で、上記期間中に新規契約を締結されるお客様 ※過去にHmletへの入居歴がある方(再契約・部屋移動・物件移動)は対象外となります。 <キャンペーンの適用方法> お申し込み時に、「キャンペーンを見た」とお知らせください。 ============================= 【Spring Special Offer】 【Fresh Start Special Discount】 Get ¥20,000 OFF your move-in costs! Kickstart your new life with Hmlet! We are excited to offer a special discount to help you settle in. Why not take this opportunity to experience the Hmlet lifestyle? A stylish living space and a convenient, comfortable lifestyle are waiting for you. <Campaign Details> Offer: ¥20,000 OFF your initial move-in costs <Terms & Conditions> Move-in Period: Applicable for residents starting their stay between May 1 and June 30, 2026 Eligible Properties: All Hmlet properties Eligibility: This campaign is available exclusively to first-time residents who sign a new lease. Please note that current residents who are extending their existing contracts, as well as former residents returning through a re-contract or relocating/transferring between Hmlet properties, are not eligible for this discount. <How to Apply> When applying, please mention that you saw the campaign. ~~~~~~~~~~~~~~~~~~~~~~~~~~~~~~~~~~~~ *入居費用(契約時の一回限りの支払い) サービスフィー(返金不可): 総賃料の10% 退去清掃費: 基準家賃の25% *オプション料金(該当する場合のみ) ペット礼金: ¥110,000(返金不可) 駐輪場登録費: ¥3,300/台(契約時にお支払い) レンタル布団セット: ¥22,000/一式(契約時にお支払い) *料金に含まれる内容: - 光熱費・インターネット費用 - カスタマーサポート・緊急コールセンター - 仲介手数料なし - 礼金なし *キッチン備品: - 調理器具・カトラリーが部屋に備え付けられています。 https://drive.google.com/file/d/1sSyG7K30TXeBjV3xSmGH7E2I8Xqu1zRB/view ============================================================= *Move-in Fees (One-time Payment, applicable to all contracts.) Service Fee(Non-refundable): 10% of Rent Subtotal Move Out Cleaning Fee: 25% of List Price *Optional Fees (If Applicable) Pet Fee: ¥110,000 (Non-refundable) Bicycle Parking Registration Fee: ¥3,300 (One-time payment per bicycle) Rental Futon Set: ¥22,000 (One-time payment per set) *Included in Service Fee: - Utilities & Internet Fees - Customer Support & Emergency Call Center - No Brokerage Fee - No Key Money Required *Kitchen Essentials Provided: - Cooking utensils and cutlery are included in the room. https://drive.google.com/file/d/1EE-avQWs-ECVMZpK8NRitGvFLiJ72L8P/view |
| Payment 支払方法 |
One-time payment 一括前払い、Monthly payment 月払い Credit card クレジットカード払い / Bank transfer 銀行振込 |
|---|---|
| Rental fee賃料 |
|
| Common service fee共益費 |
|
| Water, heat, and light expenses水道光熱費 |
|
| Internet feeインターネット料 |
|
| Rental guarantee fee賃貸保証料 |
|
| Property insurance fee家財保険料 |
|
| Key money (contract money/administrative fee)礼金(契約金・事務手数料) |
|
| Security Deposit (Insurance fee)敷金(保証金) |
|
| Key exchange fee (key deposit)鍵交換費(鍵デポジット) |
|
| Cleaning feeクリーニング費用 |
|
| Cancellation penalty fee中途解約違約金 |
|
| Re-contract fee (update fee)再契約料(更新料) |
|
| Bedding fee寝具代 |
|
| Membership fee会員費 |
|
| Ohter その他 | 【Fresh Startキャンペーン実施中】初回費用から¥20,000 OFF 新生活をスタートされる方を対象に、初期費用が20,000円OFFとなるFresh Start Special Discountを実施いたします! この機会に、ハムレットでの暮らしを楽しんでみませんか?スタイリッシュな空間と、便利で快適なライフスタイルが待っています。 <キャンペーン概要> 特典: 初期費用から20,000円割引 <適用条件> 入居開始期間: 2026年5月1日 〜 6月30日に入居を開始される方 対象物件:Hmlet全物件 対象者:Hmletを初めてご利用いただく方で、上記期間中に新規契約を締結されるお客様 ※過去にHmletへの入居歴がある方(再契約・部屋移動・物件移動)は対象外となります。 <キャンペーンの適用方法> お申し込み時に、「キャンペーンを見た」とお知らせください。 ============================= 【Spring Special Offer】 【Fresh Start Special Discount】 Get ¥20,000 OFF your move-in costs! Kickstart your new life with Hmlet! We are excited to offer a special discount to help you settle in. Why not take this opportunity to experience the Hmlet lifestyle? A stylish living space and a convenient, comfortable lifestyle are waiting for you. <Campaign Details> Offer: ¥20,000 OFF your initial move-in costs <Terms & Conditions> Move-in Period: Applicable for residents starting their stay between May 1 and June 30, 2026 Eligible Properties: All Hmlet properties Eligibility: This campaign is available exclusively to first-time residents who sign a new lease. Please note that current residents who are extending their existing contracts, as well as former residents returning through a re-contract or relocating/transferring between Hmlet properties, are not eligible for this discount. <How to Apply> When applying, please mention that you saw the campaign. ~~~~~~~~~~~~~~~~~~~~~~~~~~~~~~~~~~~~ *入居費用(契約時の一回限りの支払い) サービスフィー(返金不可): 総賃料の10% 退去清掃費: 基準家賃の25% *オプション料金(該当する場合のみ) ペット礼金: ¥110,000(返金不可) 駐輪場登録費: ¥3,300/台(契約時にお支払い) レンタル布団セット: ¥22,000/一式(契約時にお支払い) *料金に含まれる内容: - 光熱費・インターネット費用 - カスタマーサポート・緊急コールセンター - 仲介手数料なし - 礼金なし *キッチン備品: - 調理器具・カトラリーが部屋に備え付けられています。 https://drive.google.com/file/d/1sSyG7K30TXeBjV3xSmGH7E2I8Xqu1zRB/view ============================================================= *Move-in Fees (One-time Payment, applicable to all contracts.) Service Fee(Non-refundable): 10% of Rent Subtotal Move Out Cleaning Fee: 25% of List Price *Optional Fees (If Applicable) Pet Fee: ¥110,000 (Non-refundable) Bicycle Parking Registration Fee: ¥3,300 (One-time payment per bicycle) Rental Futon Set: ¥22,000 (One-time payment per set) *Included in Service Fee: - Utilities & Internet Fees - Customer Support & Emergency Call Center - No Brokerage Fee - No Key Money Required *Kitchen Essentials Provided: - Cooking utensils and cutlery are included in the room. https://drive.google.com/file/d/1EE-avQWs-ECVMZpK8NRitGvFLiJ72L8P/view |
| Payment 支払方法 |
One-time payment 一括前払い、Monthly payment 月払い Credit card クレジットカード払い / Bank transfer 銀行振込 |
|---|---|
| Rental fee賃料 |
|
| Common service fee共益費 |
|
| Water, heat, and light expenses水道光熱費 |
|
| Internet feeインターネット料 |
|
| Rental guarantee fee賃貸保証料 |
|
| Property insurance fee家財保険料 |
|
| Key money (contract money/administrative fee)礼金(契約金・事務手数料) |
|
| Security Deposit (Insurance fee)敷金(保証金) |
|
| Key exchange fee (key deposit)鍵交換費(鍵デポジット) |
|
| Cleaning feeクリーニング費用 |
|
| Cancellation penalty fee中途解約違約金 |
|
| Re-contract fee (update fee)再契約料(更新料) |
|
| Bedding fee寝具代 |
|
| Membership fee会員費 |
|
| Ohter その他 | 【Fresh Startキャンペーン実施中】初回費用から¥20,000 OFF 新生活をスタートされる方を対象に、初期費用が20,000円OFFとなるFresh Start Special Discountを実施いたします! この機会に、ハムレットでの暮らしを楽しんでみませんか?スタイリッシュな空間と、便利で快適なライフスタイルが待っています。 <キャンペーン概要> 特典: 初期費用から20,000円割引 <適用条件> 入居開始期間: 2026年5月1日 〜 6月30日に入居を開始される方 対象物件:Hmlet全物件 対象者:Hmletを初めてご利用いただく方で、上記期間中に新規契約を締結されるお客様 ※過去にHmletへの入居歴がある方(再契約・部屋移動・物件移動)は対象外となります。 <キャンペーンの適用方法> お申し込み時に、「キャンペーンを見た」とお知らせください。 ============================= 【Spring Special Offer】 【Fresh Start Special Discount】 Get ¥20,000 OFF your move-in costs! Kickstart your new life with Hmlet! We are excited to offer a special discount to help you settle in. Why not take this opportunity to experience the Hmlet lifestyle? A stylish living space and a convenient, comfortable lifestyle are waiting for you. <Campaign Details> Offer: ¥20,000 OFF your initial move-in costs <Terms & Conditions> Move-in Period: Applicable for residents starting their stay between May 1 and June 30, 2026 Eligible Properties: All Hmlet properties Eligibility: This campaign is available exclusively to first-time residents who sign a new lease. Please note that current residents who are extending their existing contracts, as well as former residents returning through a re-contract or relocating/transferring between Hmlet properties, are not eligible for this discount. <How to Apply> When applying, please mention that you saw the campaign. ~~~~~~~~~~~~~~~~~~~~~~~~~~~~~~~~~~~~ *入居費用(契約時の一回限りの支払い) サービスフィー(返金不可): 総賃料の10% 退去清掃費: 基準家賃の25% *オプション料金(該当する場合のみ) ペット礼金: ¥110,000(返金不可) 駐輪場登録費: ¥3,300/台(契約時にお支払い) レンタル布団セット: ¥22,000/一式(契約時にお支払い) *料金に含まれる内容: - 光熱費・インターネット費用 - カスタマーサポート・緊急コールセンター - 仲介手数料なし - 礼金なし *キッチン備品: - 調理器具・カトラリーが部屋に備え付けられています。 https://drive.google.com/file/d/1sSyG7K30TXeBjV3xSmGH7E2I8Xqu1zRB/view ============================================================= *Move-in Fees (One-time Payment, applicable to all contracts.) Service Fee(Non-refundable): 10% of Rent Subtotal Move Out Cleaning Fee: 25% of List Price *Optional Fees (If Applicable) Pet Fee: ¥110,000 (Non-refundable) Bicycle Parking Registration Fee: ¥3,300 (One-time payment per bicycle) Rental Futon Set: ¥22,000 (One-time payment per set) *Included in Service Fee: - Utilities & Internet Fees - Customer Support & Emergency Call Center - No Brokerage Fee - No Key Money Required *Kitchen Essentials Provided: - Cooking utensils and cutlery are included in the room. https://drive.google.com/file/d/1EE-avQWs-ECVMZpK8NRitGvFLiJ72L8P/view |
| Payment 支払方法 |
One-time payment 一括前払い、Monthly payment 月払い Credit card クレジットカード払い / Bank transfer 銀行振込 |
|---|---|
| Rental fee賃料 |
|
| Common service fee共益費 |
|
| Water, heat, and light expenses水道光熱費 |
|
| Internet feeインターネット料 |
|
| Rental guarantee fee賃貸保証料 |
|
| Property insurance fee家財保険料 |
|
| Key money (contract money/administrative fee)礼金(契約金・事務手数料) |
|
| Security Deposit (Insurance fee)敷金(保証金) |
|
| Key exchange fee (key deposit)鍵交換費(鍵デポジット) |
|
| Cleaning feeクリーニング費用 |
|
| Cancellation penalty fee中途解約違約金 |
|
| Re-contract fee (update fee)再契約料(更新料) |
|
| Bedding fee寝具代 |
|
| Membership fee会員費 |
|
| Ohter その他 | 【Fresh Startキャンペーン実施中】初回費用から¥20,000 OFF 新生活をスタートされる方を対象に、初期費用が20,000円OFFとなるFresh Start Special Discountを実施いたします! この機会に、ハムレットでの暮らしを楽しんでみませんか?スタイリッシュな空間と、便利で快適なライフスタイルが待っています。 <キャンペーン概要> 特典: 初期費用から20,000円割引 <適用条件> 入居開始期間: 2026年5月1日 〜 6月30日に入居を開始される方 対象物件:Hmlet全物件 対象者:Hmletを初めてご利用いただく方で、上記期間中に新規契約を締結されるお客様 ※過去にHmletへの入居歴がある方(再契約・部屋移動・物件移動)は対象外となります。 <キャンペーンの適用方法> お申し込み時に、「キャンペーンを見た」とお知らせください。 ============================= 【Spring Special Offer】 【Fresh Start Special Discount】 Get ¥20,000 OFF your move-in costs! Kickstart your new life with Hmlet! We are excited to offer a special discount to help you settle in. Why not take this opportunity to experience the Hmlet lifestyle? A stylish living space and a convenient, comfortable lifestyle are waiting for you. <Campaign Details> Offer: ¥20,000 OFF your initial move-in costs <Terms & Conditions> Move-in Period: Applicable for residents starting their stay between May 1 and June 30, 2026 Eligible Properties: All Hmlet properties Eligibility: This campaign is available exclusively to first-time residents who sign a new lease. Please note that current residents who are extending their existing contracts, as well as former residents returning through a re-contract or relocating/transferring between Hmlet properties, are not eligible for this discount. <How to Apply> When applying, please mention that you saw the campaign. ~~~~~~~~~~~~~~~~~~~~~~~~~~~~~~~~~~~~ *入居費用(契約時の一回限りの支払い) サービスフィー(返金不可): 総賃料の10% 退去清掃費: 基準家賃の25% *オプション料金(該当する場合のみ) ペット礼金: ¥110,000(返金不可) 駐輪場登録費: ¥3,300/台(契約時にお支払い) レンタル布団セット: ¥22,000/一式(契約時にお支払い) *料金に含まれる内容: - 光熱費・インターネット費用 - カスタマーサポート・緊急コールセンター - 仲介手数料なし - 礼金なし *キッチン備品: - 調理器具・カトラリーが部屋に備え付けられています。 https://drive.google.com/file/d/1sSyG7K30TXeBjV3xSmGH7E2I8Xqu1zRB/view ============================================================= *Move-in Fees (One-time Payment, applicable to all contracts.) Service Fee(Non-refundable): 10% of Rent Subtotal Move Out Cleaning Fee: 25% of List Price *Optional Fees (If Applicable) Pet Fee: ¥110,000 (Non-refundable) Bicycle Parking Registration Fee: ¥3,300 (One-time payment per bicycle) Rental Futon Set: ¥22,000 (One-time payment per set) *Included in Service Fee: - Utilities & Internet Fees - Customer Support & Emergency Call Center - No Brokerage Fee - No Key Money Required *Kitchen Essentials Provided: - Cooking utensils and cutlery are included in the room. https://drive.google.com/file/d/1EE-avQWs-ECVMZpK8NRitGvFLiJ72L8P/view |
| Payment 支払方法 |
One-time payment 一括前払い、Monthly payment 月払い Credit card クレジットカード払い / Bank transfer 銀行振込 |
|---|---|
| Rental fee賃料 |
|
| Common service fee共益費 |
|
| Water, heat, and light expenses水道光熱費 |
|
| Internet feeインターネット料 |
|
| Rental guarantee fee賃貸保証料 |
|
| Property insurance fee家財保険料 |
|
| Key money (contract money/administrative fee)礼金(契約金・事務手数料) |
|
| Security Deposit (Insurance fee)敷金(保証金) |
|
| Key exchange fee (key deposit)鍵交換費(鍵デポジット) |
|
| Cleaning feeクリーニング費用 |
|
| Cancellation penalty fee中途解約違約金 |
|
| Re-contract fee (update fee)再契約料(更新料) |
|
| Bedding fee寝具代 |
|
| Membership fee会員費 |
|
| Ohter その他 | 【Fresh Startキャンペーン実施中】初回費用から¥20,000 OFF 新生活をスタートされる方を対象に、初期費用が20,000円OFFとなるFresh Start Special Discountを実施いたします! この機会に、ハムレットでの暮らしを楽しんでみませんか?スタイリッシュな空間と、便利で快適なライフスタイルが待っています。 <キャンペーン概要> 特典: 初期費用から20,000円割引 <適用条件> 入居開始期間: 2026年5月1日 〜 6月30日に入居を開始される方 対象物件:Hmlet全物件 対象者:Hmletを初めてご利用いただく方で、上記期間中に新規契約を締結されるお客様 ※過去にHmletへの入居歴がある方(再契約・部屋移動・物件移動)は対象外となります。 <キャンペーンの適用方法> お申し込み時に、「キャンペーンを見た」とお知らせください。 ============================= 【Spring Special Offer】 【Fresh Start Special Discount】 Get ¥20,000 OFF your move-in costs! Kickstart your new life with Hmlet! We are excited to offer a special discount to help you settle in. Why not take this opportunity to experience the Hmlet lifestyle? A stylish living space and a convenient, comfortable lifestyle are waiting for you. <Campaign Details> Offer: ¥20,000 OFF your initial move-in costs <Terms & Conditions> Move-in Period: Applicable for residents starting their stay between May 1 and June 30, 2026 Eligible Properties: All Hmlet properties Eligibility: This campaign is available exclusively to first-time residents who sign a new lease. Please note that current residents who are extending their existing contracts, as well as former residents returning through a re-contract or relocating/transferring between Hmlet properties, are not eligible for this discount. <How to Apply> When applying, please mention that you saw the campaign. ~~~~~~~~~~~~~~~~~~~~~~~~~~~~~~~~~~~~ *入居費用(契約時の一回限りの支払い) サービスフィー(返金不可): 総賃料の10% 退去清掃費: 基準家賃の25% *オプション料金(該当する場合のみ) ペット礼金: ¥110,000(返金不可) 駐輪場登録費: ¥3,300/台(契約時にお支払い) レンタル布団セット: ¥22,000/一式(契約時にお支払い) *料金に含まれる内容: - 光熱費・インターネット費用 - カスタマーサポート・緊急コールセンター - 仲介手数料なし - 礼金なし *キッチン備品: - 調理器具・カトラリーが部屋に備え付けられています。 https://drive.google.com/file/d/1sSyG7K30TXeBjV3xSmGH7E2I8Xqu1zRB/view ============================================================= *Move-in Fees (One-time Payment, applicable to all contracts.) Service Fee(Non-refundable): 10% of Rent Subtotal Move Out Cleaning Fee: 25% of List Price *Optional Fees (If Applicable) Pet Fee: ¥110,000 (Non-refundable) Bicycle Parking Registration Fee: ¥3,300 (One-time payment per bicycle) Rental Futon Set: ¥22,000 (One-time payment per set) *Included in Service Fee: - Utilities & Internet Fees - Customer Support & Emergency Call Center - No Brokerage Fee - No Key Money Required *Kitchen Essentials Provided: - Cooking utensils and cutlery are included in the room. https://drive.google.com/file/d/1EE-avQWs-ECVMZpK8NRitGvFLiJ72L8P/view |
| Payment 支払方法 |
One-time payment 一括前払い、Monthly payment 月払い Credit card クレジットカード払い / Bank transfer 銀行振込 |
|---|---|
| Rental fee賃料 |
|
| Common service fee共益費 |
|
| Water, heat, and light expenses水道光熱費 |
|
| Internet feeインターネット料 |
|
| Rental guarantee fee賃貸保証料 |
|
| Property insurance fee家財保険料 |
|
| Key money (contract money/administrative fee)礼金(契約金・事務手数料) |
|
| Security Deposit (Insurance fee)敷金(保証金) |
|
| Key exchange fee (key deposit)鍵交換費(鍵デポジット) |
|
| Cleaning feeクリーニング費用 |
|
| Cancellation penalty fee中途解約違約金 |
|
| Re-contract fee (update fee)再契約料(更新料) |
|
| Bedding fee寝具代 |
|
| Membership fee会員費 |
|
| Ohter その他 | 【Fresh Startキャンペーン実施中】初回費用から¥20,000 OFF 新生活をスタートされる方を対象に、初期費用が20,000円OFFとなるFresh Start Special Discountを実施いたします! この機会に、ハムレットでの暮らしを楽しんでみませんか?スタイリッシュな空間と、便利で快適なライフスタイルが待っています。 <キャンペーン概要> 特典: 初期費用から20,000円割引 <適用条件> 入居開始期間: 2026年5月1日 〜 6月30日に入居を開始される方 対象物件:Hmlet全物件 対象者:Hmletを初めてご利用いただく方で、上記期間中に新規契約を締結されるお客様 ※過去にHmletへの入居歴がある方(再契約・部屋移動・物件移動)は対象外となります。 <キャンペーンの適用方法> お申し込み時に、「キャンペーンを見た」とお知らせください。 ============================= 【Spring Special Offer】 【Fresh Start Special Discount】 Get ¥20,000 OFF your move-in costs! Kickstart your new life with Hmlet! We are excited to offer a special discount to help you settle in. Why not take this opportunity to experience the Hmlet lifestyle? A stylish living space and a convenient, comfortable lifestyle are waiting for you. <Campaign Details> Offer: ¥20,000 OFF your initial move-in costs <Terms & Conditions> Move-in Period: Applicable for residents starting their stay between May 1 and June 30, 2026 Eligible Properties: All Hmlet properties Eligibility: This campaign is available exclusively to first-time residents who sign a new lease. Please note that current residents who are extending their existing contracts, as well as former residents returning through a re-contract or relocating/transferring between Hmlet properties, are not eligible for this discount. <How to Apply> When applying, please mention that you saw the campaign. ~~~~~~~~~~~~~~~~~~~~~~~~~~~~~~~~~~~~ *入居費用(契約時の一回限りの支払い) サービスフィー(返金不可): 総賃料の10% 退去清掃費: 基準家賃の25% *オプション料金(該当する場合のみ) ペット礼金: ¥110,000(返金不可) 駐輪場登録費: ¥3,300/台(契約時にお支払い) レンタル布団セット: ¥22,000/一式(契約時にお支払い) *料金に含まれる内容: - 光熱費・インターネット費用 - カスタマーサポート・緊急コールセンター - 仲介手数料なし - 礼金なし *キッチン備品: - 調理器具・カトラリーが部屋に備え付けられています。 https://drive.google.com/file/d/1sSyG7K30TXeBjV3xSmGH7E2I8Xqu1zRB/view ============================================================= *Move-in Fees (One-time Payment, applicable to all contracts.) Service Fee(Non-refundable): 10% of Rent Subtotal Move Out Cleaning Fee: 25% of List Price *Optional Fees (If Applicable) Pet Fee: ¥110,000 (Non-refundable) Bicycle Parking Registration Fee: ¥3,300 (One-time payment per bicycle) Rental Futon Set: ¥22,000 (One-time payment per set) *Included in Service Fee: - Utilities & Internet Fees - Customer Support & Emergency Call Center - No Brokerage Fee - No Key Money Required *Kitchen Essentials Provided: - Cooking utensils and cutlery are included in the room. https://drive.google.com/file/d/1EE-avQWs-ECVMZpK8NRitGvFLiJ72L8P/view |





































※写真はお部屋の一例です
※表示価格は目安の賃料となるため、ご契約期間や条件により変動します。
※初期費用は、記載の退去清掃費に加えて、サービスフィー(礼金に記載)が発生いたします。詳細はお問合せください。
*Room example.
*The listed price is an approximate rent and may vary depending on the contract period and conditions.
*In addition to the stated move-out cleaning fee, a service fee will be charged as part of the initial costs. Please contact our sales team for more details.